Ozolkalni

01Project description

Ozolkalni community village

Ozolkalni is a new park, well-cared-for and with a lot of greenery, in which pavilion-style rental houses are placed. The park area is made up of a number of functional zones – private gardens, partially private zones between houses and picnic spots intended for shared use, children’s playgrounds and fields for sport. One row of buildings is made up of shared-use pavilions for the needs of residents and the existing nearby training centre. Every shared-use pavilion has a defined use: for co-creation, eating, doing sport or relaxation.

For connection and mobility across all public zones, in the park there is a circular pedestrian way. The residents of Ozolkalni can use the route as an outside active area for running, rollerskating and other activities. The park is established as a space free from cars. A car park together with a technical building, bike stands and containers for waste separation are set at the corner of the plot of land.

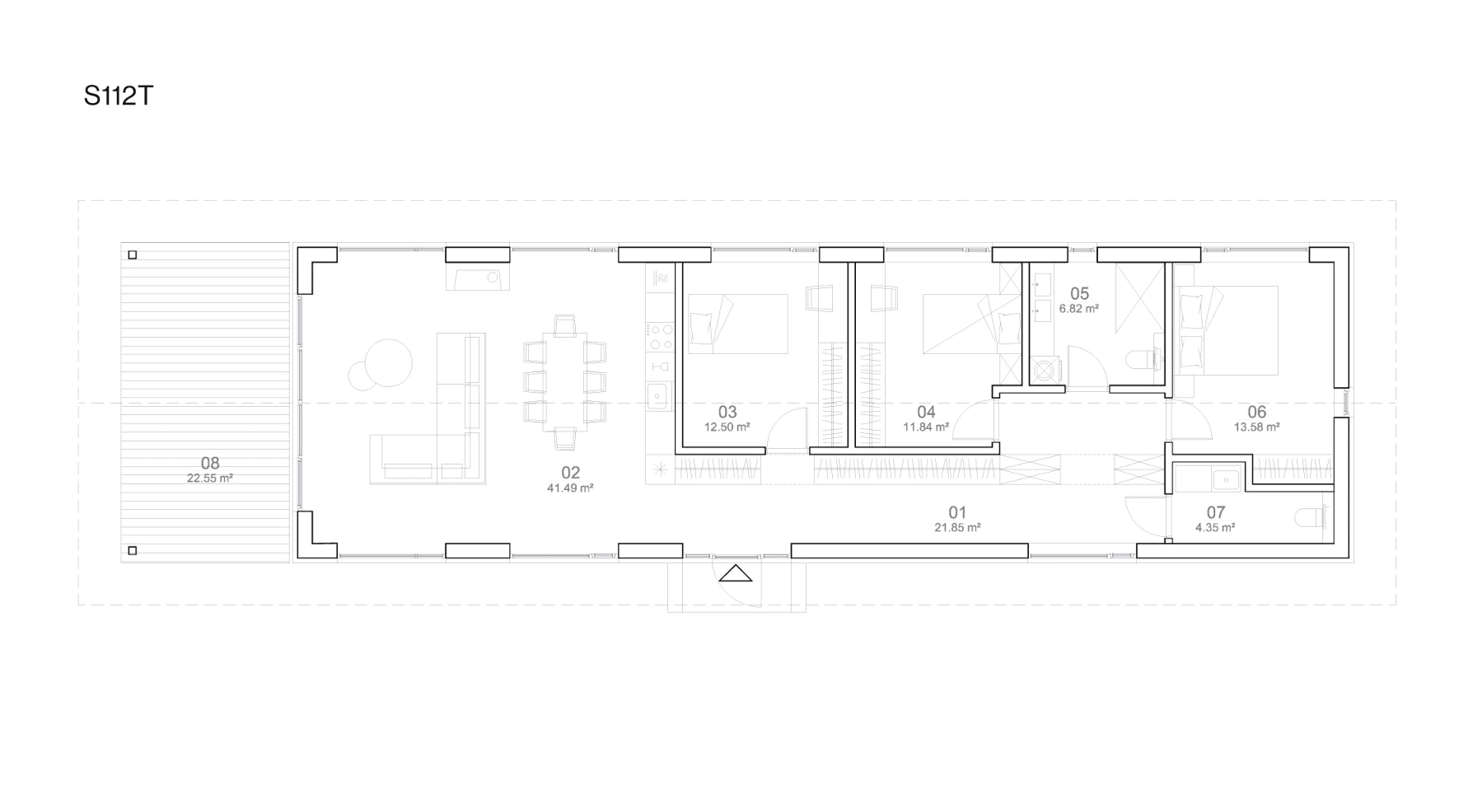
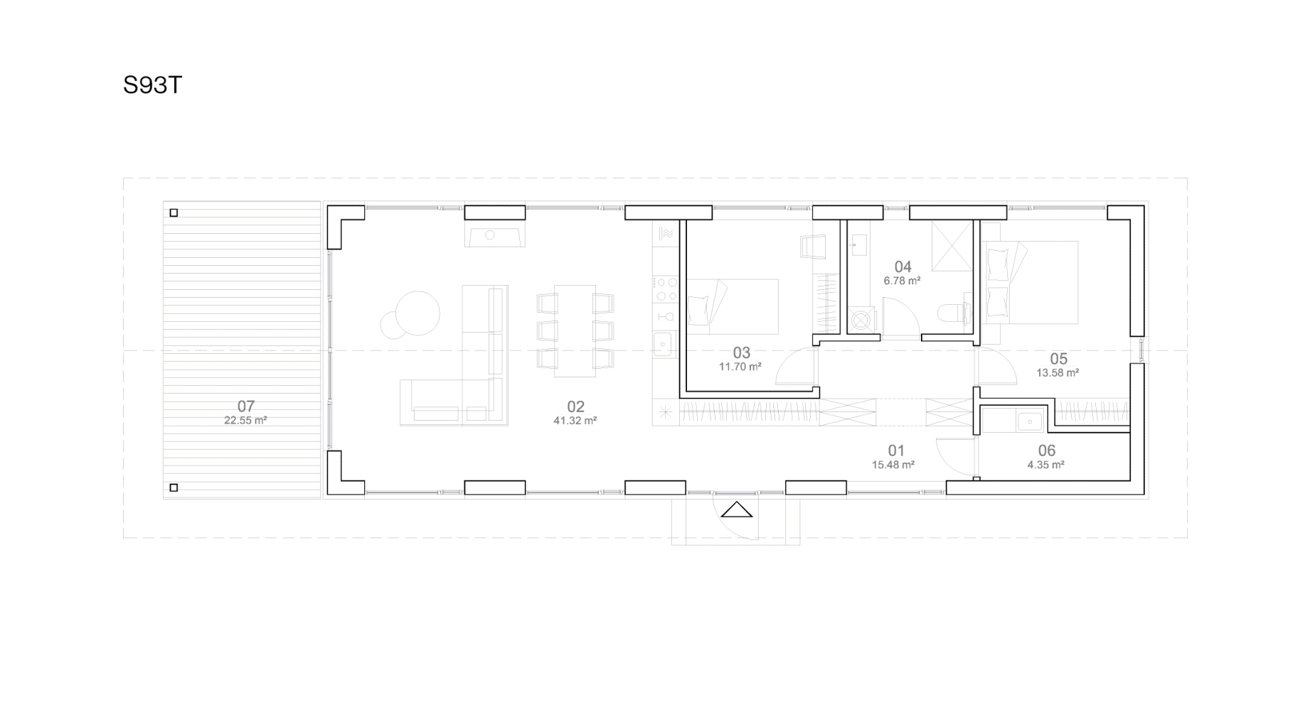
The buildings are designed as single-storey pavilions with compact layouts and wide terraces. The size of the building available for rent can be selected depending on the size of the family. The area of the smaller buildings is 65 m², and the area of the larger buildings is 120 m². For heating of the homes at Ozolkalni, split air-to-water-type heat pumps are used in combination with a fireplace and recuperator. The buildings are made up of concrete slab foundations, wood frame walls and roof constructions.

02Project team

Guntis Ziņģis, Dace Grāvere, Kristīne Skunstiņa and Laura Birstiņa

03Combined area of the site

1,7 ha

04Year

2022

05Buildings’ area

from 65 to 120 m²

06Status

Construction stage

Related projects