Hagberg Building

01Project description

Hagberg office building

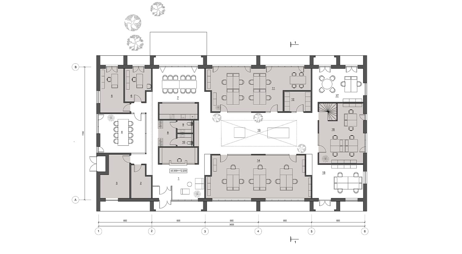
The small office building has been built in a typical suburban environment between an industrial area and a birch wood. The simple, hangar-like building blends into the surrounding landscape and it is realised with a limited budget. The building structure is formed by large spans without columns, which allows free rein in terms of the division of the internal space, the height, and lightness of the space. In order to blur the borders between the indoor and outdoor space, the surrounding nature and forests, large indoor plants are placed in the space.

Functionally, the building has all the components necessary for a modern office. Inside, there are spaces for discussion of different sizes, a space for quiet work, a relaxation space, a games area, a kitchen with a fresh juice bar and a dining area with a terrace. The multi-faceted nature of the spaces promotes worker productivity.

The structure of the office building is made up of different sections or “little houses”, and the spaces between them, which can be used for different functions – exchange of ideas, quick discussions and other activities where a great deal of concentration is not necessary. All the “little houses” have a glass wall and door, which allows them to be connected with other spaces to create a large open office. This principle of an office that can be partially opened up and mutually linked allows for varied use of the space.

The facade of the building is trimmed with fibre cement boards. In order to reduce consumption of materials, small plate cuttings are used in the finish. The perforated plates in the facade conceal the pipes used for the supply of fresh air and the removal of stale air, as well as the cooling equipment. In the facade, windows of different sizes are used, making the building more closed-off to the public courtyard with car parking spaces, but more open to the forest. The roof overhangs and niches create a small outdoor terrace, as well as shielding the workspaces from direct sunlight.

The Hagberg office was nominated for the annual Latvian Architecture Award in 2020.

02Project team

Guntis Ziņģis, Valdis Jurdžs

03Total area of the territory

2000 m²

04Total area of the building

600 m²

05Year

2019

06Status

Completed

07Nominee

Latvian Architecture Award 2020 Nominee

Related projects