Besh Barmag Mountain

01Projekta apraksts

Vēsturiski nozīmīgas svētvietas atjaunošana Azerbaidžānā

Besh Barmag kalns ir viens no slavenākajiem kalniem Kaukāzā, kas pazīstams ar saviem mītiskajiem stāstiem. Šī ir svēta vieta, kur tūkstošiem cilvēku ierodas reliģiozu iemeslu dēļ, svin Gurban bayramı un meklē dziedinošo spēku. Vietu iecienījuši arī klinšu kāpēji un putnu vērotāji. Apmetne diemžēl ir attīstījusies haotiski, netiek ievērotas sanitārās normas, atkritumi netiek savākti un pašbūvētās nojumes degradē kopējo ainavu. Tā kā pulcēšanās vieta atrodas nelielā ielejā, tad tur bieži veidojas dubļi, kas ir nopietns apgrūtinājums gan cilvēkiem, gan automašīnām.

Arhitektūras idejas pamatā ir izcelt šo maģisko vietu un dabas krāšņumu. Tāpēc risinājums ir harmonisks un vienkāršs. Tas paredz pa apmetnes perimetru izveidot ūdens drenāžas cilpu, atbalsta sienu kas organizē un un savieno visas nepieciešamās funkcionālās zonas- autostāvvietu, Gurbangah, Informācijas centru, tējas dzeršanas nojumes un labierīcības. Atbalsta siena, kā labiekārtojuma elements neļaus pie zemes nomestiem atkritumiem izplatīties tālāk dabā.

Lai ēkas, kas ir atbalsta sienas telpisks turpinājums, iekļautos ainavā un nebojātu skatu, tās veidotas no vietējā akmens kā vienstāvīgi apjomi ar zaļo jumtu. Drenāžas sistēmā savāktais lietusūdens tiks izmantots koku laistīšanai. Projekts paredz arī atjaunot esošo avotu lai viesiem nodrošinātu tīru bezmaksas dzeramo ūdeni. Laukuma vidus daļā, kur ir lielāks mitrums, paredzēts iestādīt ap simts savvaļas bumbieru koku. Tāpat laukumā paredzēta zona zirgu izjādēm un bērnu rotaļu laukums.

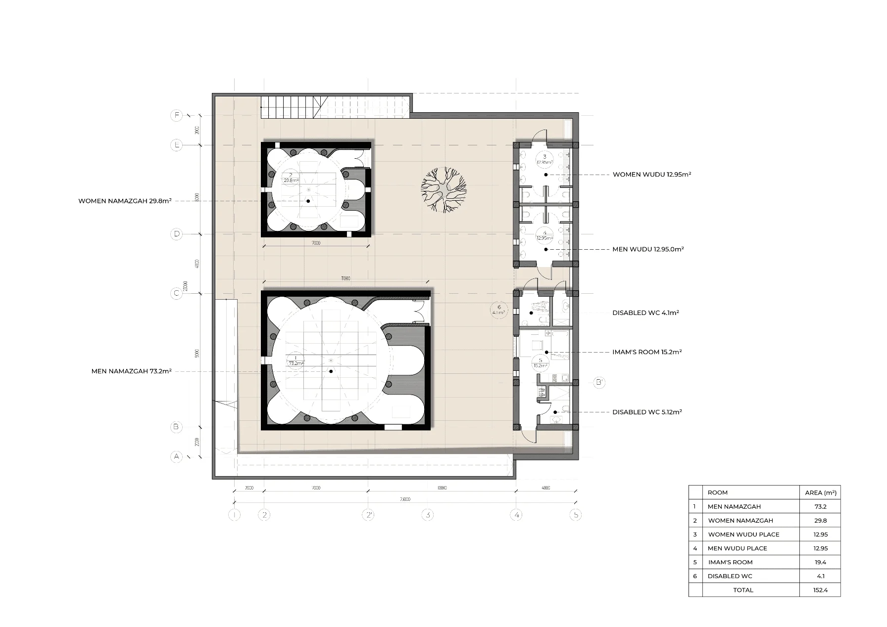
Pusceļā starp apmetni un kalna virsotni, paredzēts uzbūvēt arī labiekārtotu lūgšanās vietu, jeb mošeju. Izrādot cieņu pret dabu un seno svētvietu, jaunā mošeja ir veidota askētismā un minimālismā, izmantojot vietējo akmeni kā būvmateriālu. Vīriešiem un sievietēm ir paredzētas vienlīdzīgas lūgšanu zāles(Namazgah), kuras no ārpuses veido izstiepti kubi (atsauce uz Mekku, Kaaba), bet iekšpusē tā ir klasiska lūgšanu telpa ar kupola griestiem un nišām. Mācītāja (Imam) telpa, kā arī mazgāšanās telpas (wudu) ir paslēptas ainavā. Telpa ap kubiem ir veidota kā iedziļināts pagalms, kuram apmale pa perimetru veido kāpnes un pandusu, nodrošinot cilvēkiem vides pieejamību.

02Projekta komanda

Guntis Ziņģis sadarbībā ar Cobalt

03Teritorijas kopējā platība

2,7 ha

04Gads

2020

05Ēkas kopējā platība

2030 m²

06Statuss

Koncepts (procesā)

Saistītie projekti